A VENDRE 3 PIECES , LOGEMENT NEUF Central Juan-les-Pins
- 415 000€
La description
Livraison immédiate : emménagez sans attendre
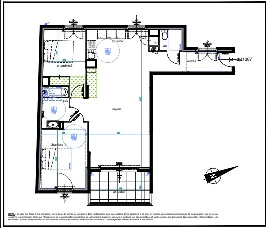
Idéalement situé, en centre ville de Juan-les-Pins, à 2 pas des commerces, des services, des restaurants et des plages de Juan les Pins, découvrez ce superbe 3 pièces de 73 m2, situé au 3e étage.
Lumineux toute la journée, grâce à sa double orientation, appartement traversant il bénéfice d’une terrasse plein Est pour profiter des beaux jours ! Deux chambres confortables, une salle de bains équipée et des WC séparés complètent ce bien.
LE SAVIEZ-VOUS ? Pour acheter votre appartement neuf de 3 pièces à Antibes, vous pouvez bénéficier d’un Prêt à Taux Zéro (PTZ) pouvant aller jusqu’à 62 100 euros (sous réserve d’éligibilité).
N’hésitez pas à vous renseigner pour devenir propriétaire dans les meilleures conditions.
Bénéficiez des avantages du neuf : ascenseur, garanties décennale et biennale, isolation phonique et matériaux NF HabitatPour toutes informations complémentaires, prenez contact avec nous !
“Les informations sur les risques auxquels ce bien est exposé sont disponibles sur le site Géorisques http://georisques.gouv.fr”
Les détails
Updated on mai 18, 2026 at 11:18 am-
Référence bien 83603229
-
Prix 415 000€
-
Taille de la propriété 73.28 m²
-
Chambres 2
-
Pièces 3
-
Salle de bain 1
-
Garage/Parking 1
-
Type de bien Appartement
-
Statut du bien Vente
Détails supplémentaires
-
Surface carrez 73.28m²
-
Nombres de pièces 3
-
Charges 150€ par Mois
-
Nombre de terrasse 1
-
Etat Général Neuf
-
Exposition Est Ouest
-
Chauffage Electrique
-
Mecanisme chauffage Electrique
-
Mode chauffage Individuel
-
Eau chaude Individuelle
-
Numéro etage 3
-
Nombre d'étages 3
-
Accès handicapés Array
-
Etat intérieur Neuf
-
Type résidence Résidence
-
Loi Carrez 70 m²
-
Prix 415000 €







